Hero

Badger Camp

This home is situated on property on a Rangeley pond that has been in the owner’s family for generations. The original camp wasn’t winterized and lacked a foundation, so the homeowner decided to build a new, year-round retreat on the existing footprint of the original camp. Now the family can enjoy this home for generations to come.

This home was featured in Maine Home + Design.

2020 10 14 Rangeley Builders Gig WEB Jeff Roberts Imaging 2
2b
3
4l

Kit home, customized

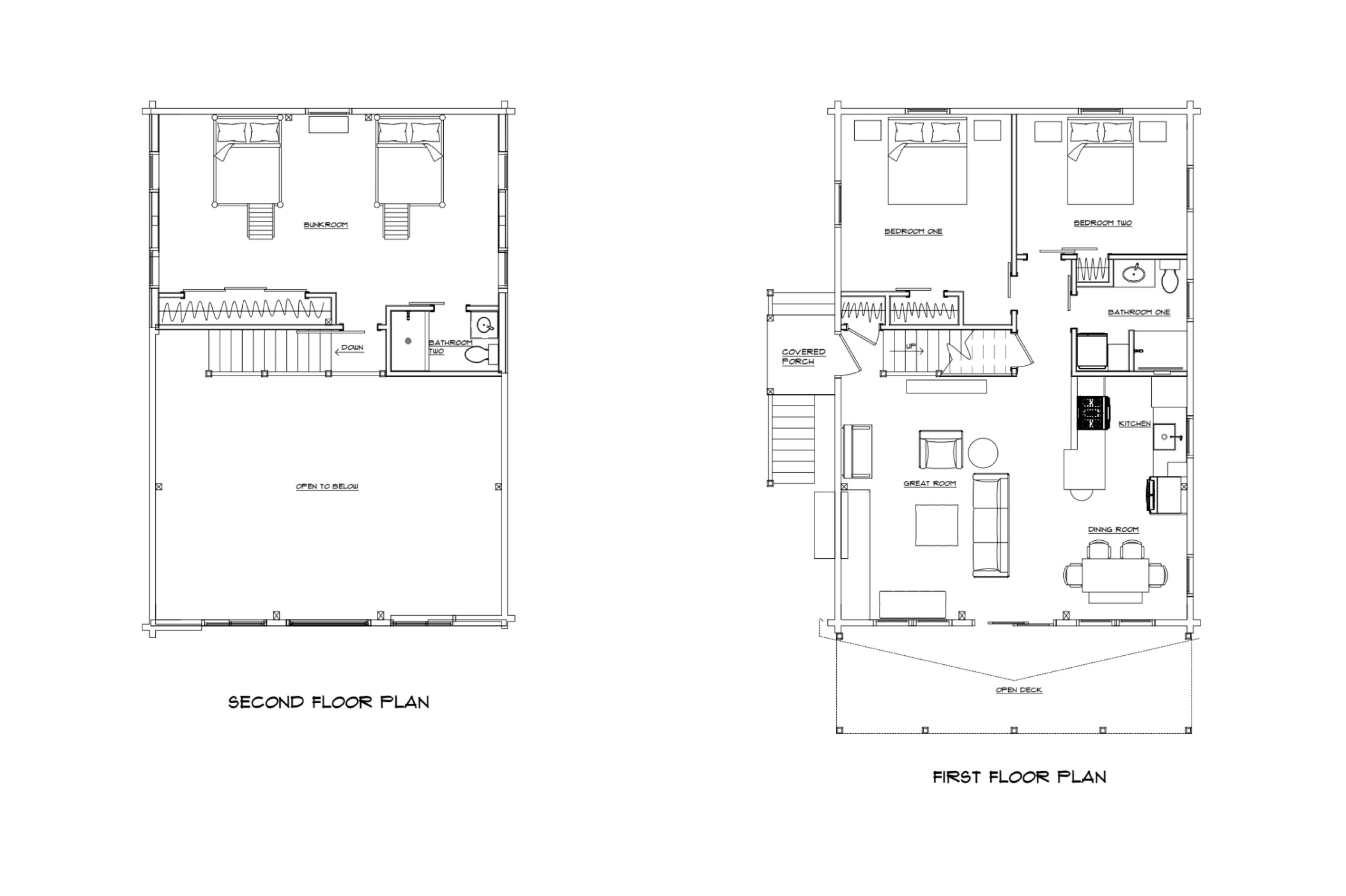
Our starting point for this home was a kit home from Coventry Log Homes, but we were able to customize this kit to suit the homeowner’s needs. By decreasing the size of one of the bedrooms, we were able to expand a bathroom to make room for a washer and dryer. We also reorganized the kitchen layout to better work for the family. We made some aesthetic changes by relocating windows and adding interior barn doors.

4p
5

Modern lodge

The homeowner wanted to create a more modern lodge feel while still keeping the traditional camp aesthetic. We did this by adding industrial details both outside and inside the home. Outside, we covered the chimney and the foundation with corrugated metal, and we styled the deck with black steel posts and a cable railing. Inside, we used black hardware throughout, including the y-gussets on the roof trusses.

6l
6p
7
8
9p

Keeping it light

Log homes can be very dark, so we worked hard to maximize natural light. The roof system - combined with the height of the roof - helps keep the interior feeling roomy and bright. We also extended pendant lighting from the high ceiling to keep light where it was needed, rather than relying solely on recessed lighting. The homeowner also chose to forego window treatments to allow unobscured natural light to come in through the home’s many windows.

9l
10a
10b

Custom details

Although we used a kit home, we still had many opportunities to customize the home and fulfill the homeowner’s vision of a modern lodge. We used sand-cast bronze hardware from Emtek, marrying an industrial and rustic aesthetic. We also chose natural stone sinks on raised vanities to better fit tall family members. Finally, we used an active, less-traditional Asian walnut floor for the main level as opposed to traditional pine flooring.

11l
11p
12
13
arrow-downarrow-leftarrow-rightarrow-upclosefacebookinstagramoutline-arrow-leftoutline-arrow-rightsearchtwitter